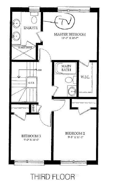
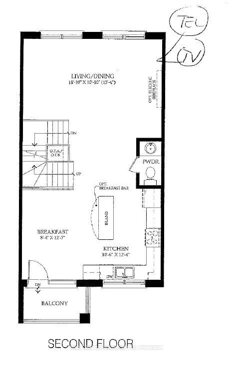
27 MoneyPenny Pl S, Vaughan, L4J 0K9 — Leased