






Terminated
$•,•••,•••
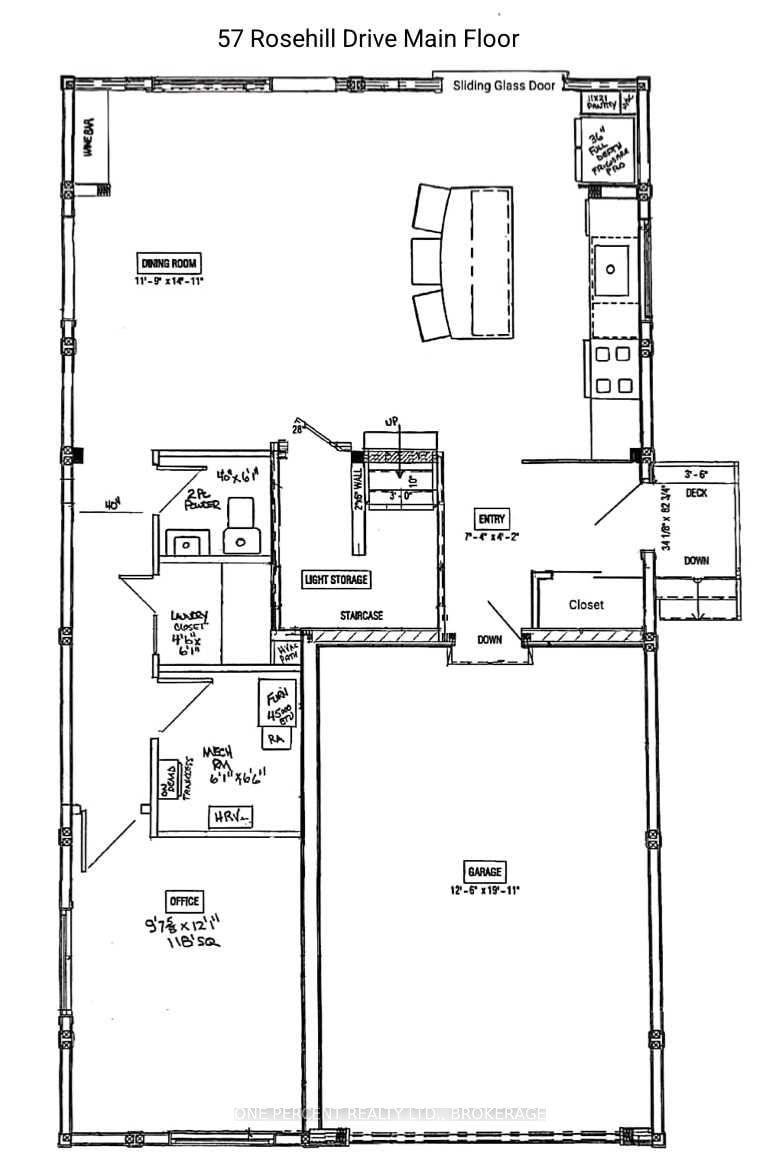
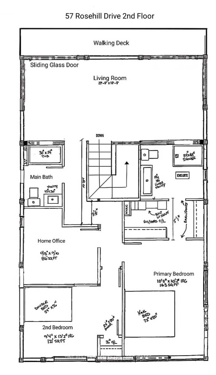
57 Rosehill Dr, Whitchurch-Stouffville, L4A 2Y3
- - Beds
- Baths
5 months
On Market
Detached
Property Type
$0 / Year
Est. Taxes
2-Storey
Style
Built-In
Garage
Crawl Space
Basement
$1,570,393
Upper range
$1,764,636
Mid range
$1,570,393
Lower range
$1,376,149
ONE PERCENT REALTY LTD., BROKERAGE - Disclaimer: The information contained in this listing has not been verified by ONE PERCENT REALTY LTD., BROKERAGE and should be verified by the buyer.
Data is deemed reliable but not guaranteed accurate by TRREB.
10 min walk • 0.89 km away
79 min walk • 6.62 km away
801 Hoover Park Dr, Whitchurch-Stouffville, ON L4A 0A4, Canada
Visit schools website99 min walk • 8.3 km away
Comparable properties in the same area and price range as 57 Rosehill Dr, Whitchurch-Stouffville, L4A 2Y3