50 Creekside Way SW, Calgary, T2X 6E2 — For sale @ $468,825
View all 40 photos40
For sale
$468,825
50 Creekside Way SW, Calgary, T2X 6E2
3 Beds
Baths
4
3 Parking
1,312 sqft
Home Overview
Description
OPEN HOUSE on Saturday AND Sunday from 12-5pm. Please go to the Show Home located at 96 Creekside Drive SW for access.Welcome to this brand-new fully finished townhome by StreetSide Developments in the thoughtfully designed community of Sirocco in south Calgary. Surrounded by parks, pathways, and a scenic central pond, Sirocco offers a peaceful neighborhood atmosphere where outdoor living and quiet moments are part of everyday life. With nearby amenities, shopping, and convenient access to major routes, residents enjoy the perfect balance of natural surroundings and city connectivity. Proximity to Sirocco Golf Club further enhances the open, green feel of this growing community.
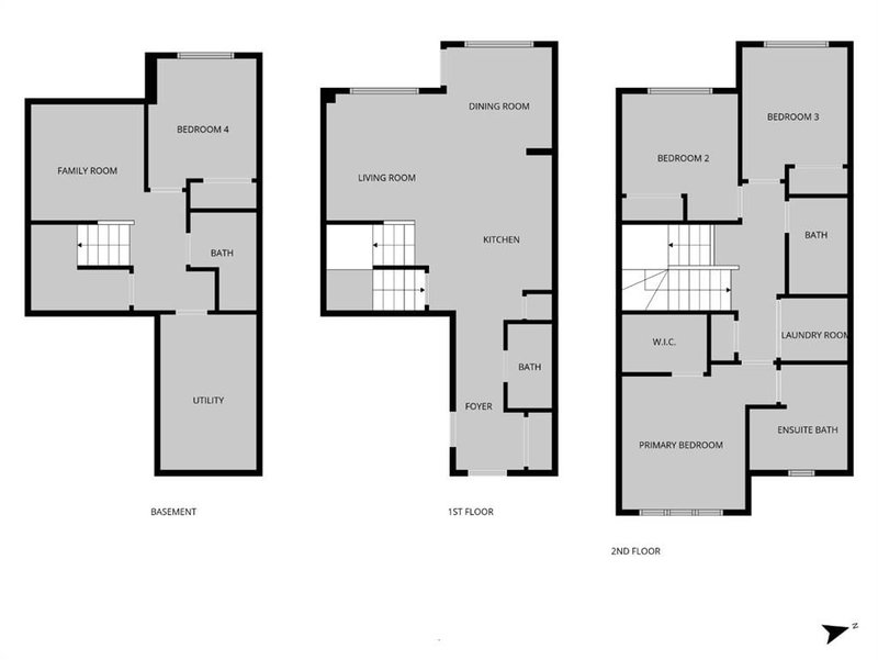
This fully finished two-storey townhome offers exceptional flexibility with four bedrooms and four bathrooms across three levels of developed living space. The main floor features a bright open-concept layout connecting the kitchen, dining area, and living room, creating a comfortable space for both everyday living and entertaining. The kitchen is beautifully finished with modern slab-style cabinetry featuring 42” upper cabinets, a full bank of drawers, soft-close doors, polished white quartz countertops, tile backsplash, stainless steel Whirlpool appliances, and a polished chrome Moen high-arc faucet with pull-down sprayer. Luxury vinyl plank flooring runs throughout the main living areas, bathrooms, and laundry room, while contemporary lighting selected by professional designers completes the modern interior.
Upstairs, you’ll find three bedrooms including a spacious primary suite with a private full ensuite. An additional full bathroom and the convenience of upper-floor laundry enhance the functionality of the upper level.
The fully finished lower level expands the home’s versatility with a fourth bedroom, full bathroom, and family room — ideal for guests, teenagers, a home office, or additional living space.
Additional features include a single attached garage with opener, driveway and an additional titled parking stall,, high-efficiency gas furnace, digital thermostat, 50-gallon electric hot water tank, energy-efficient dual-pane windows with low-E coating, sound attenuation system for increased privacy between units, and a natural gas BBQ line on the patio or balcony. Durable exterior cladding with vinyl siding and fibre cement panels, along with lifetime limited warranty roof shingles, ensures long-term performance and curb appeal.
Offering modern construction, thoughtful design, and a location centered around green space and lifestyle, this home represents an outstanding opportunity to own a brand-new property in one of Calgary’s emerging south communities.
15 days
On Market
Row/Townhouse
Property Type
$0 / Year
Est. Taxes
2 Storey
Style
-
Garage
Full,Finished,Other
Basement
Open House
Sat, Apr 25
12:00 PM - 5:00 PM
Sun, Apr 26
12:00 PM - 5:00 PM
Location & Areas
Commute
50 Creekside Way SW, Calgary, T2X 6E2
Home Details
Lot Depth:
-
Lot Width:
20
Style:
2 Storey
Exterior Construction:
Cement Fiber Board,Vinyl Siding,Wood Frame
Roof Material:
Asphalt Shingle
Patio/Deck:
Deck
Driveway:
-
Swimming Pool:
-
Instant Estimate
$486,321
+$17,496 above list price
Upper range
$521,902
Mid range
$486,321
Lower range
$450,739
Schools nearby
Listing Brokerage
MLS® Listing
A2300544
Brokerage
RE/MAX Realty Professionals
Similar Homes for Sale
Comparable properties in the same area and price range as 50 Creekside Way SW, Calgary, T2X 6E2