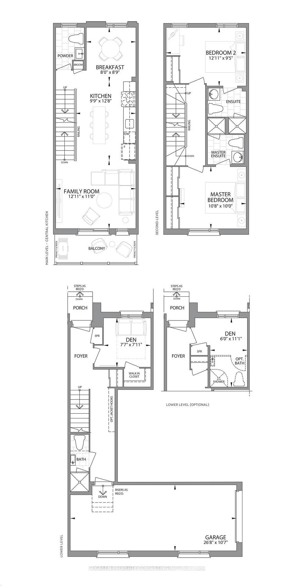
11 Spruce Pines Cres, Toronto, M4A 1C5 — For lease