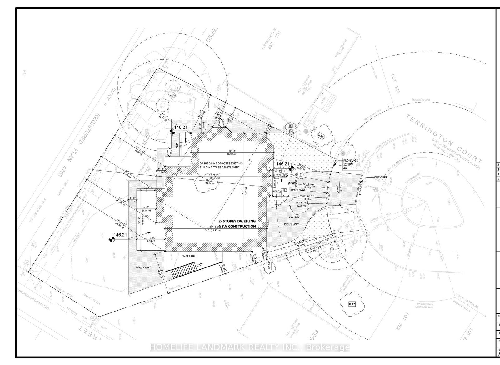
9 Terrington Crt, Toronto, M3B 2J9 — For sale @ $1,998,000