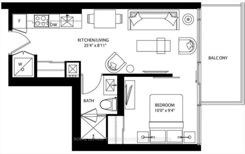
3609 - 290 Adelaide St W, Toronto, M5V 0P3 — Leased