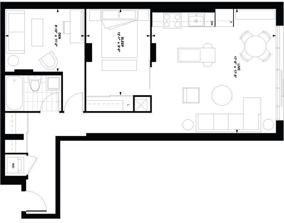
304 - 1205 Queen St W, Toronto, M6K 0B9 — Leased