









$•••,•••
U#2/L#5 - 1880 O'connor Dr, Toronto, M4A1W9
- - Baths
- - Parking
- sqft
-
On Market
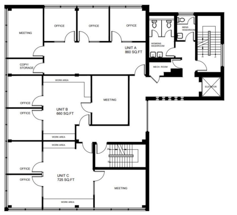
Office
Property Type
$0 / Year
Est. Taxes
-
Style
Medical/Dental
Business Type
-
Franchise
BLUE ELEPHANT REALTY INC., BROKERAGE - Disclaimer: The information contained in this listing has not been verified by BLUE ELEPHANT REALTY INC., BROKERAGE and should be verified by the buyer.
Data is deemed reliable but not guaranteed accurate by TRREB.
23 min walk • 1.92 km away
8 min walk • 0.71 km away
33 min walk • 2.76 km away
107 min walk • 8.96 km away
61 min walk • 5.16 km away
20 min walk • 1.69 km away
16 Phin Ave, Toronto, ON M4J 3T2, Canada
Visit schools website66 min walk • 5.51 km away
15 Wallingford Rd, North York, ON M3A 2T9, Canada
Visit schools website47 min walk • 3.95 km away
Comparable properties in the same area and price range as U#2/L#5 - 1880 O'connor Dr, Toronto, M4A1W9