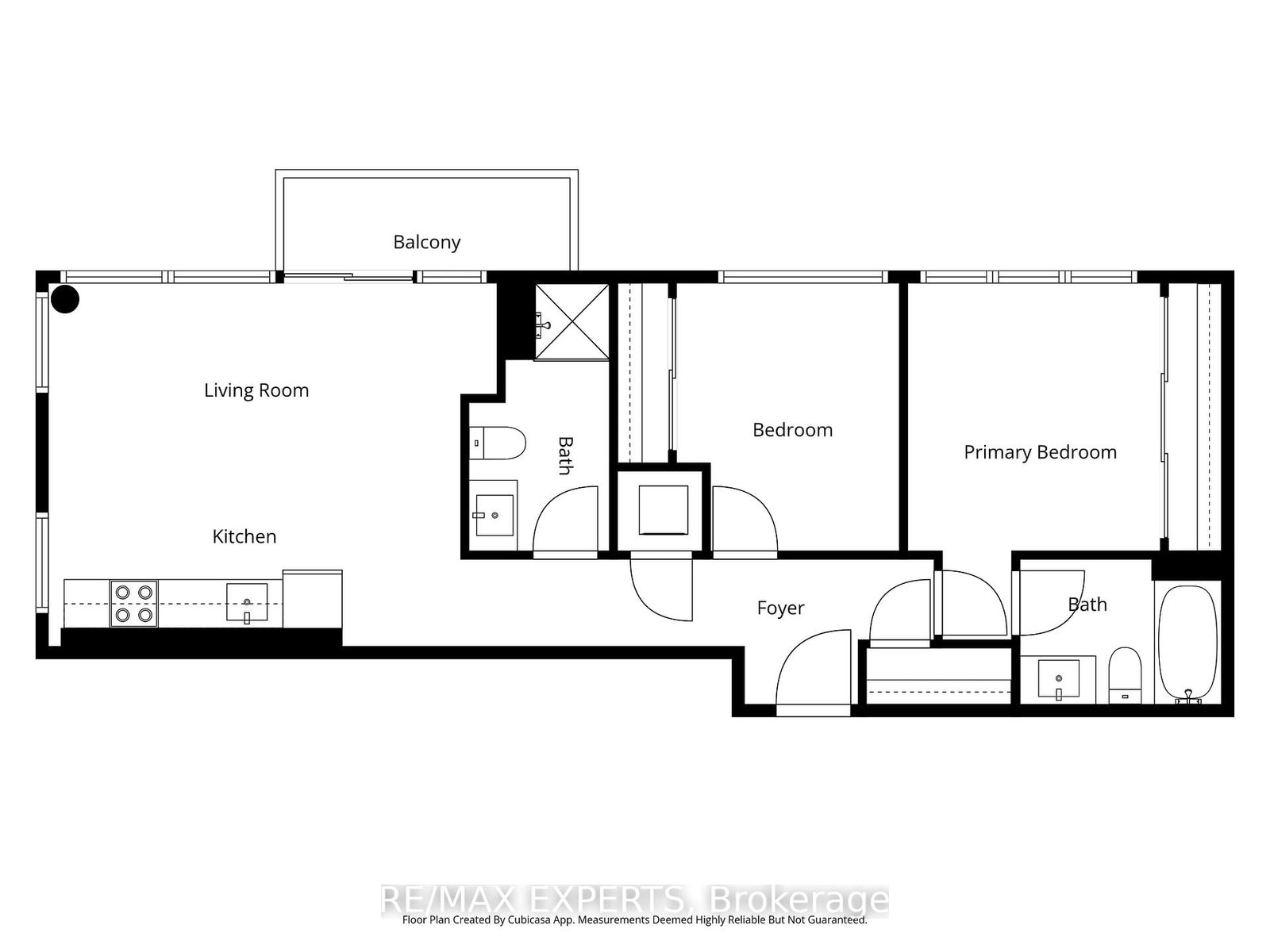
334 - 1614 Charles St, Whitby, L1N 1B9 — For sale @ $749,999