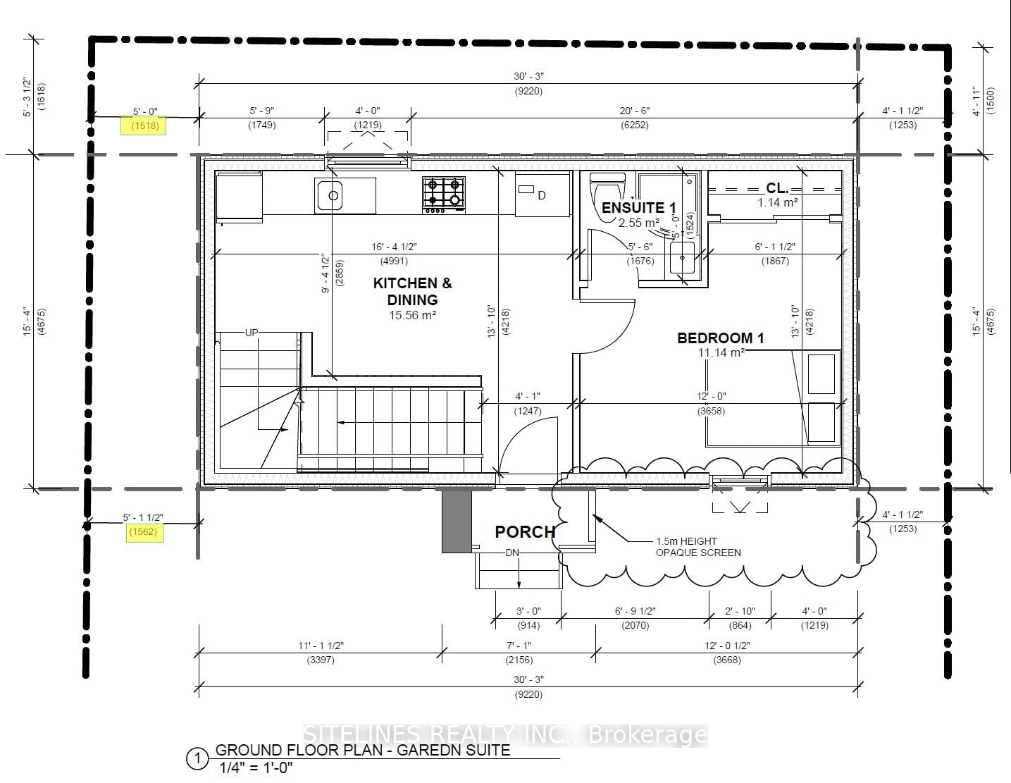
29 Orton Park Rd, Toronto, M1G 3G2 — For sale @ $850,000