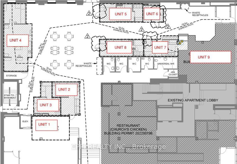
70 King St E, Oshawa, L1H 1B5 — For lease @ $75