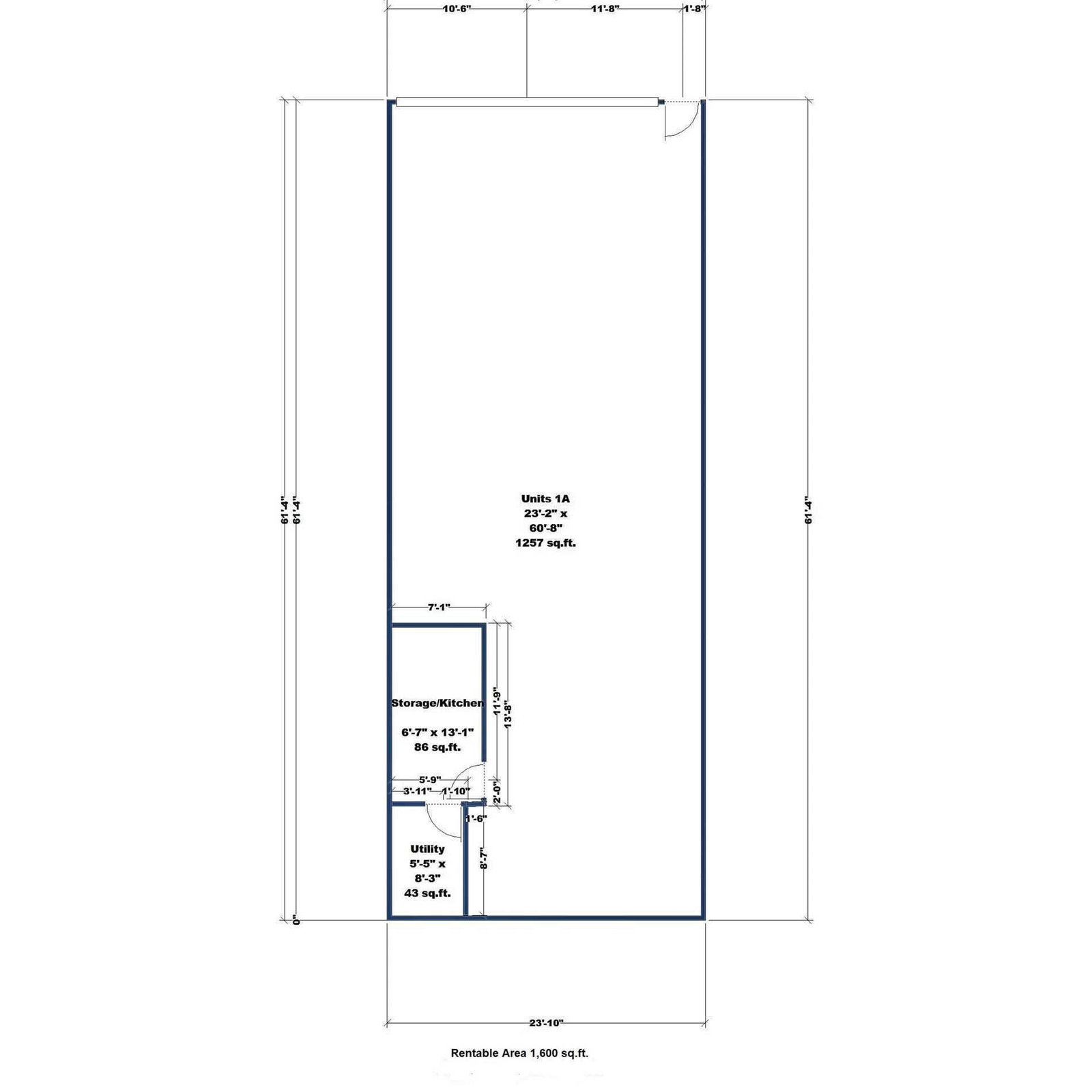
1A - 1100 Simcoe St N, Oshawa, L1G4W6 — For lease