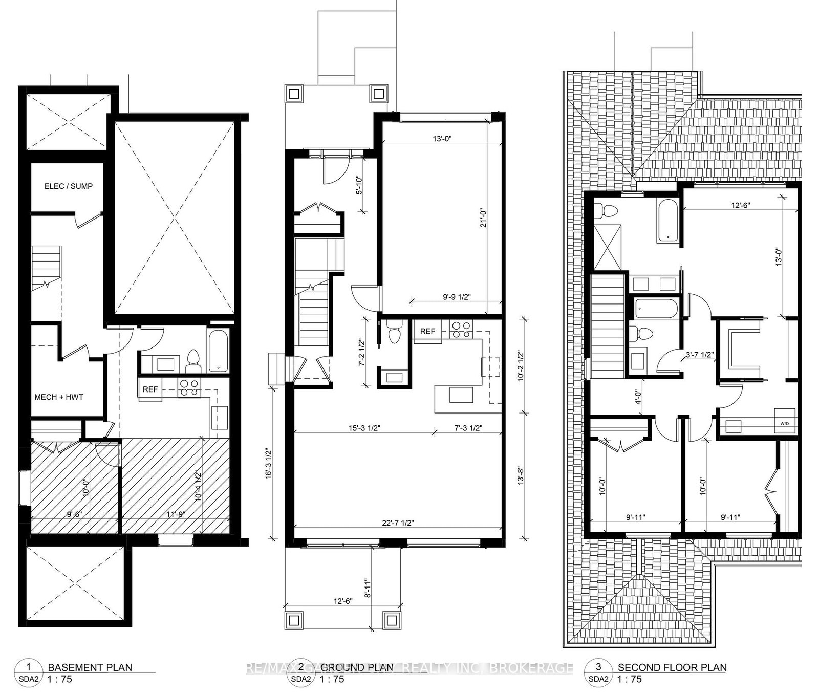
3693 ELM St, Fort Erie, L0S 1N0 — For sale @ $749,000