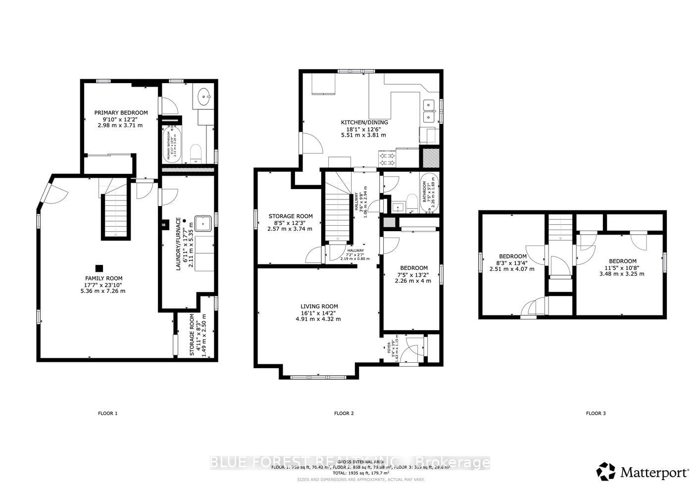
1220 Wilton Ave, London East, N5W 2G8 — For sale @ $574,999