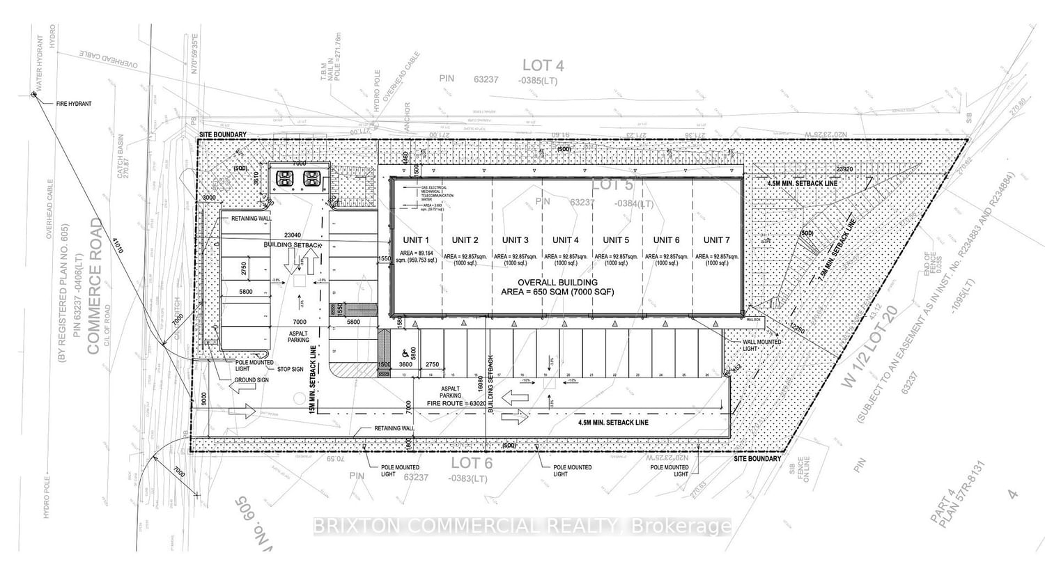
31 Commerce Rd, Kawartha Lakes, K9V 5Y3 — For lease