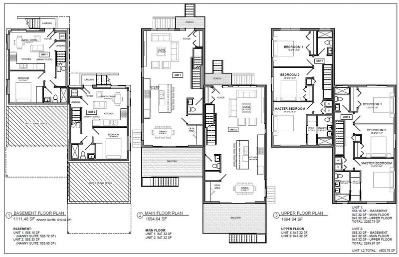
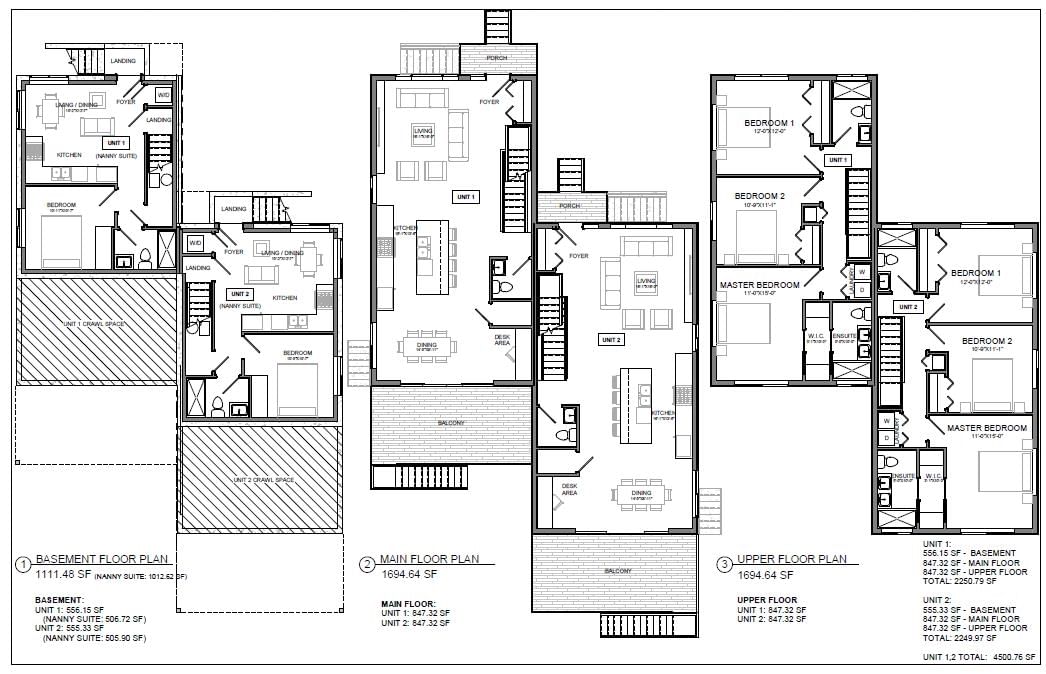
LOT A - 7225 Hudson Street, Vancouver, V6P 4K9 — For sale @ $2,488,000