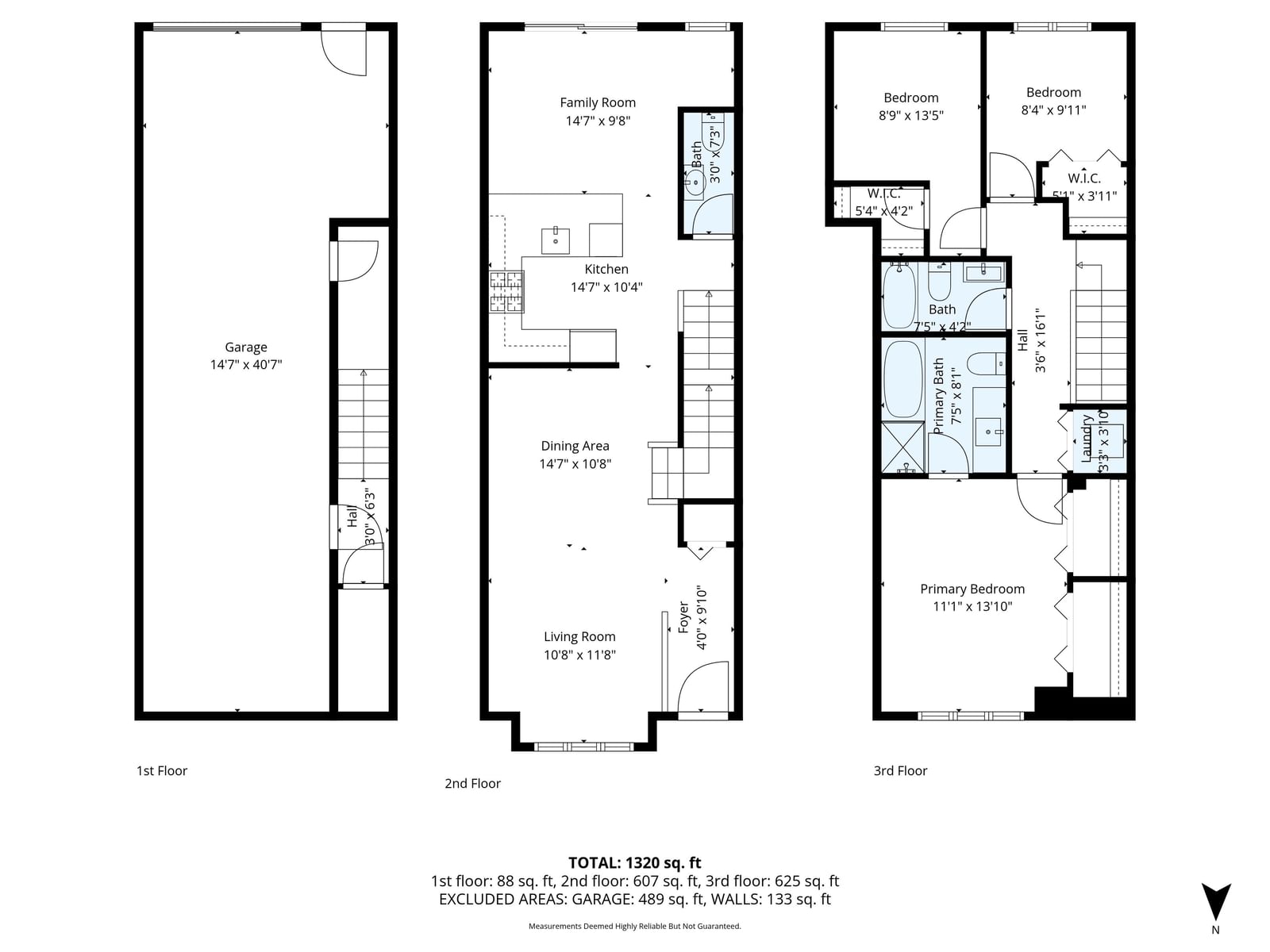
1605 - 8485 New Haven Close, Burnaby, V5J 0B7 — For sale @ $1,070,000