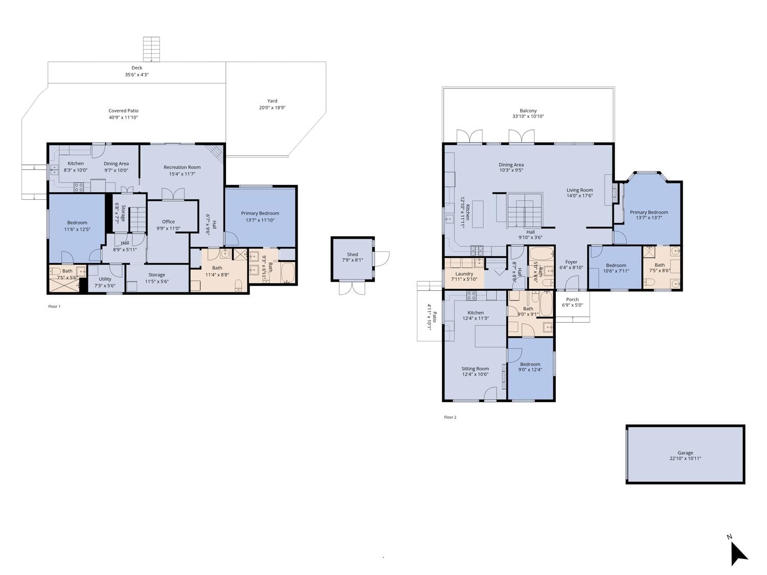
46455 Uplands Road, Chilliwack, V2R 4W1 — For sale @ $1,275,000