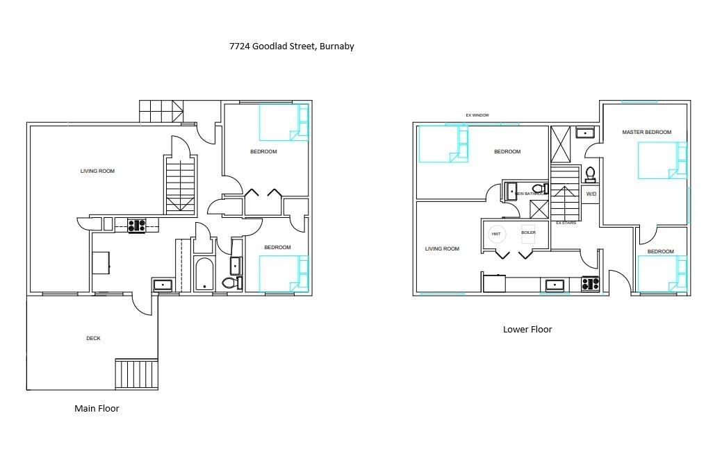
7724 Goodlad Street, Burnaby, V5E 2H6 — For sale @ $1,500,000