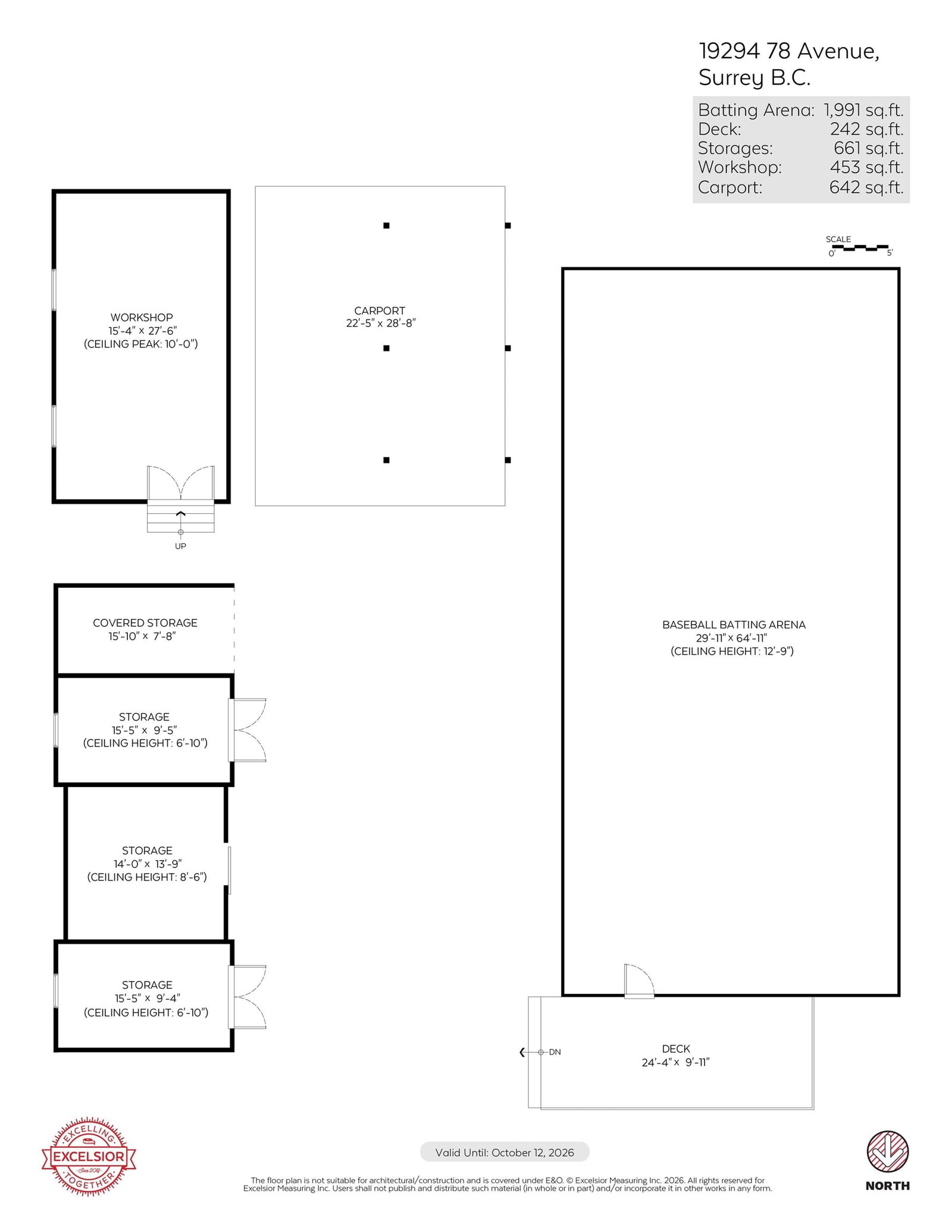
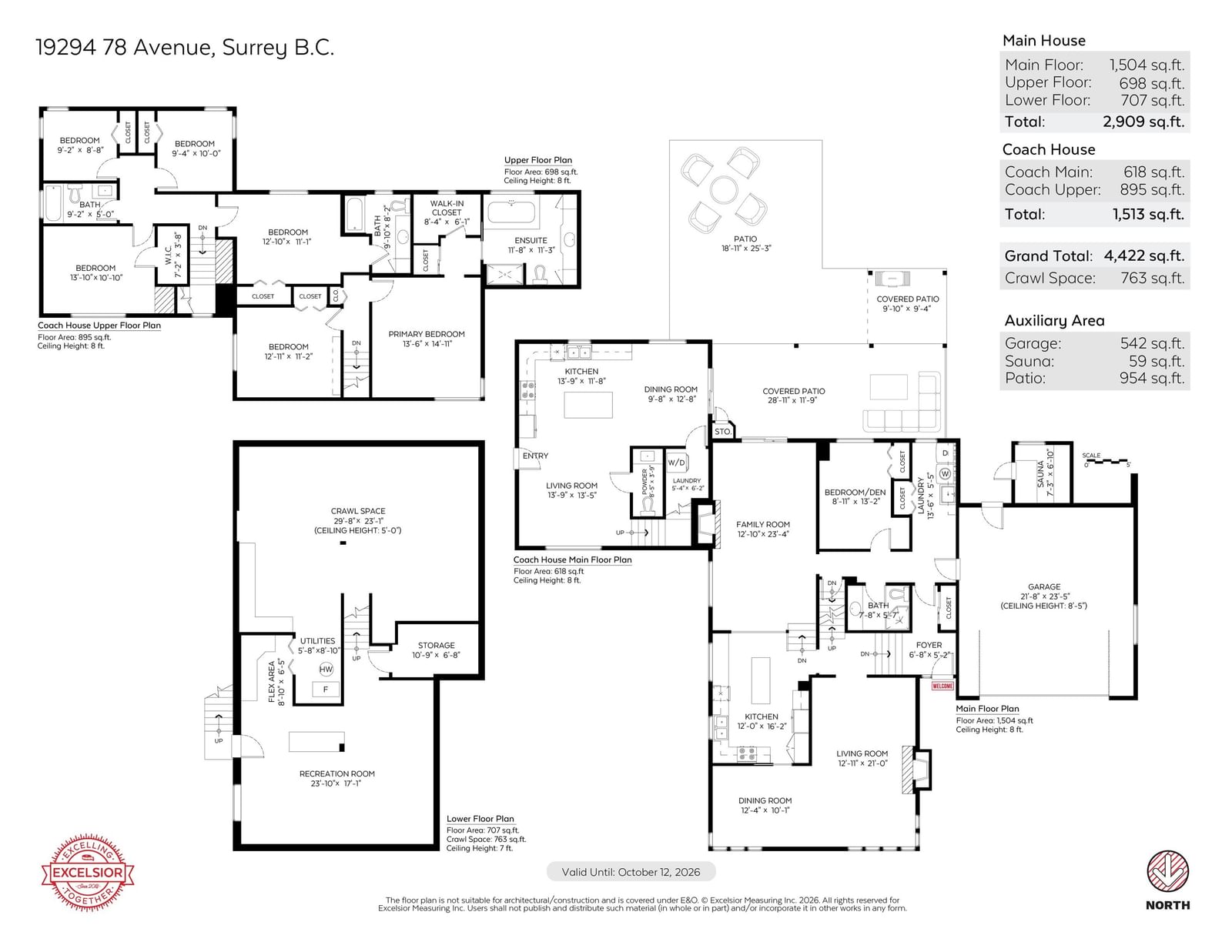
19294 78 Avenue, Surrey, V4N 6C7 — For sale @ $3,499,000