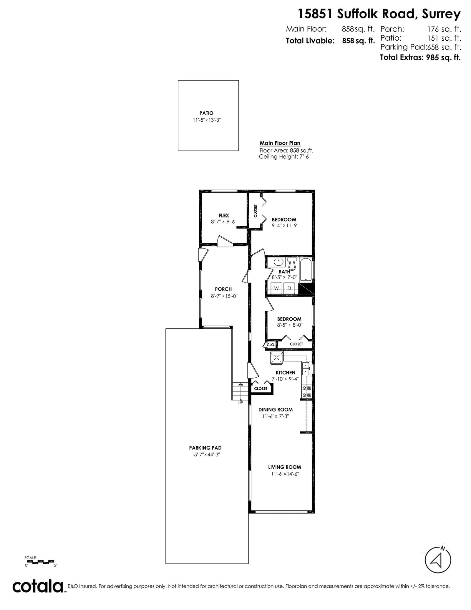
15851 Suffolk Road, Surrey, V4A 5L3 — For sale @ $689,000