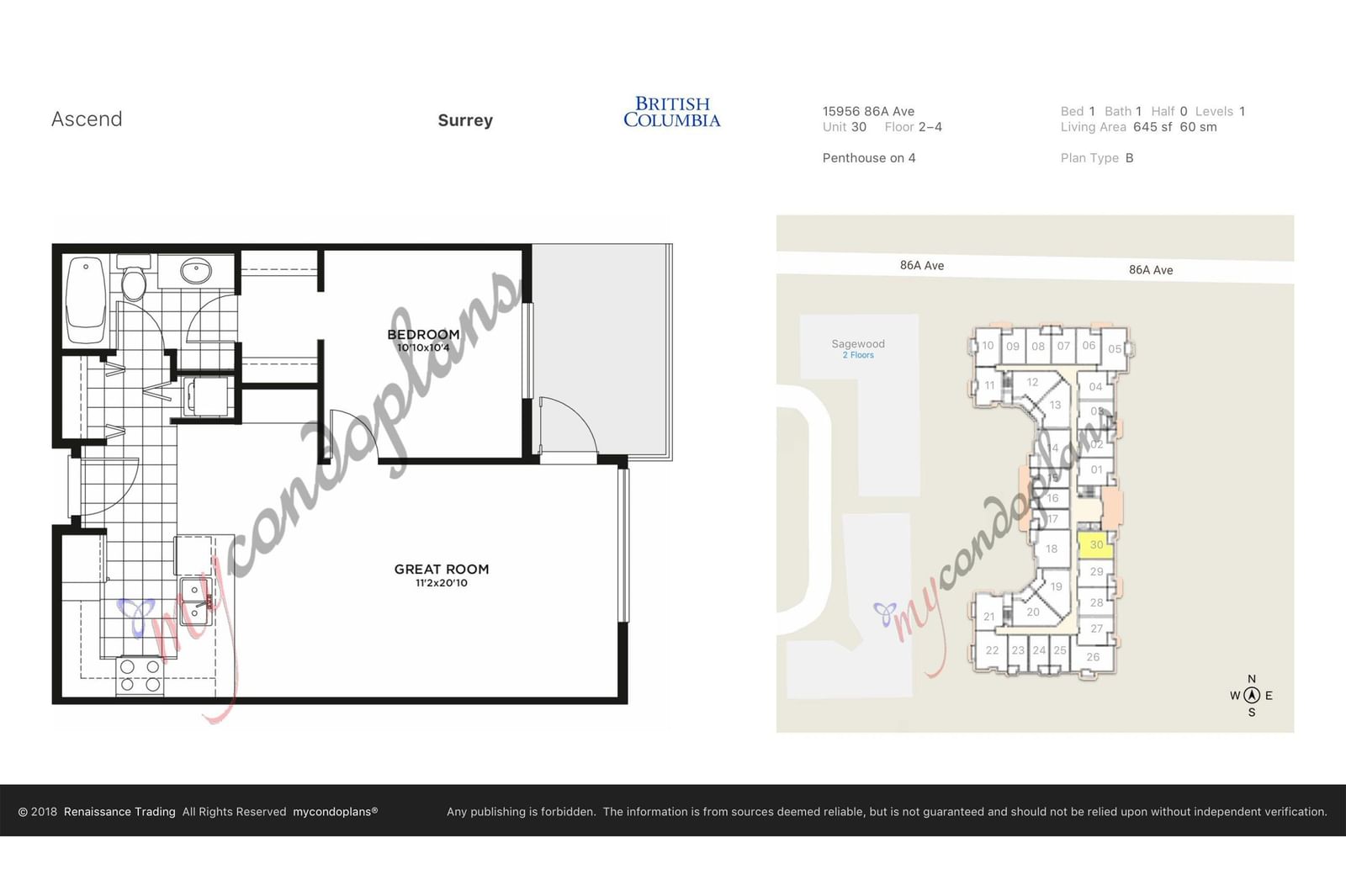
430 - 15956 86a Avenue, Surrey, V4N 6N8 — For sale @ $489,000