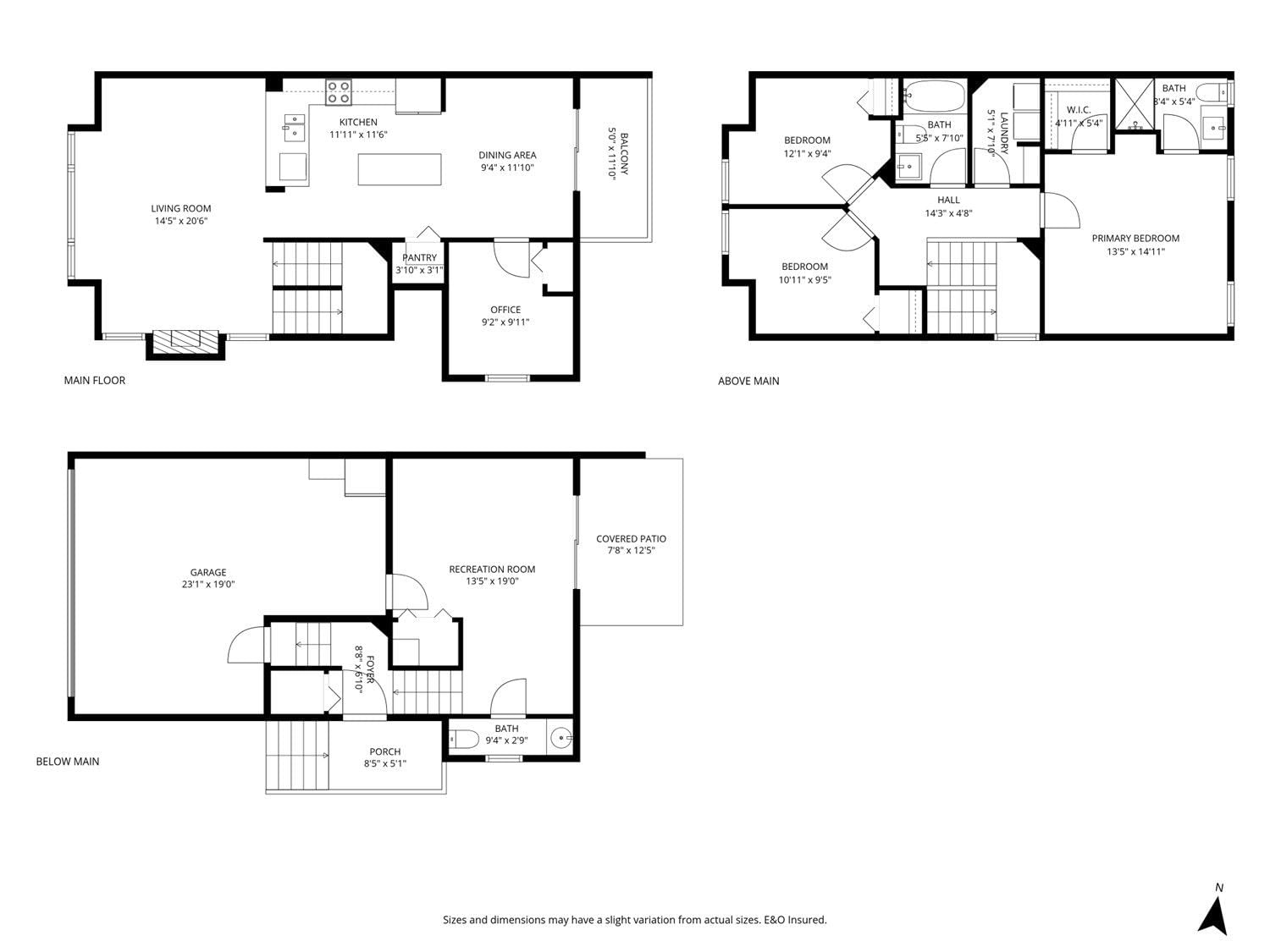
5 - 8880 Nowell Street, Chilliwack, V2P 0A6 — For sale @ $594,999