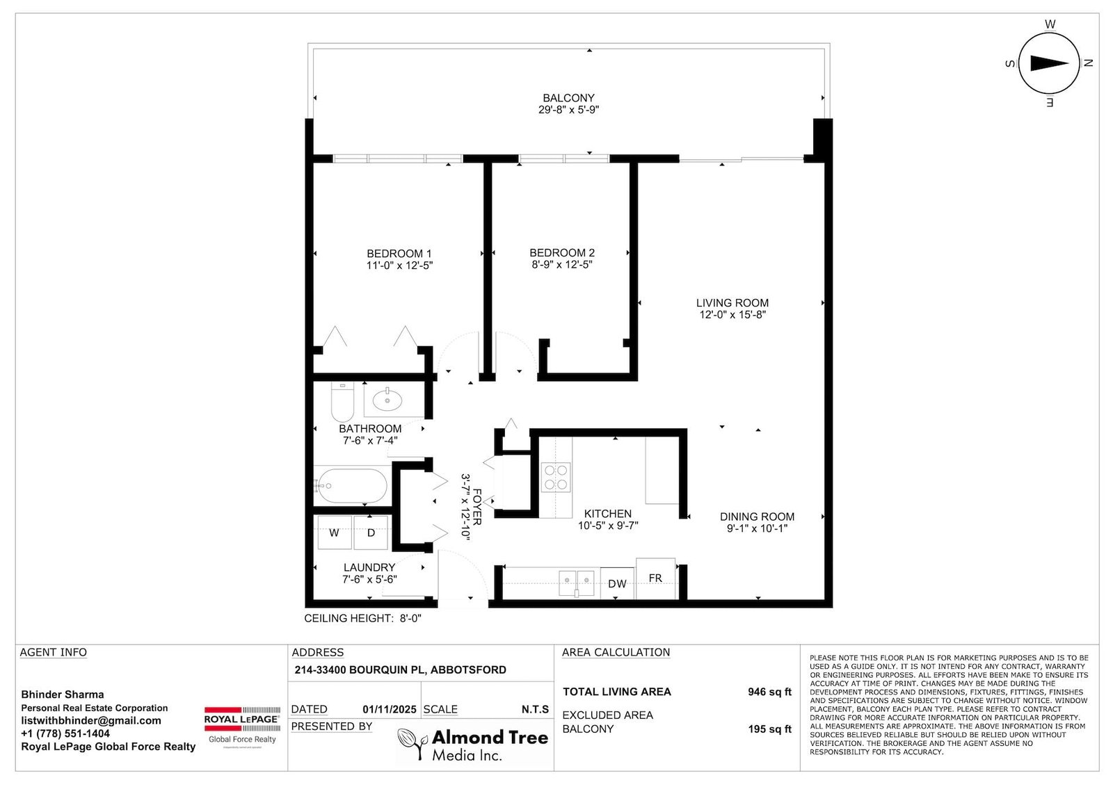
214 - 33400 Bourquin Place, Abbotsford, V2S 5G3 — For sale @ $365,000