










Terminated
$•••,•••
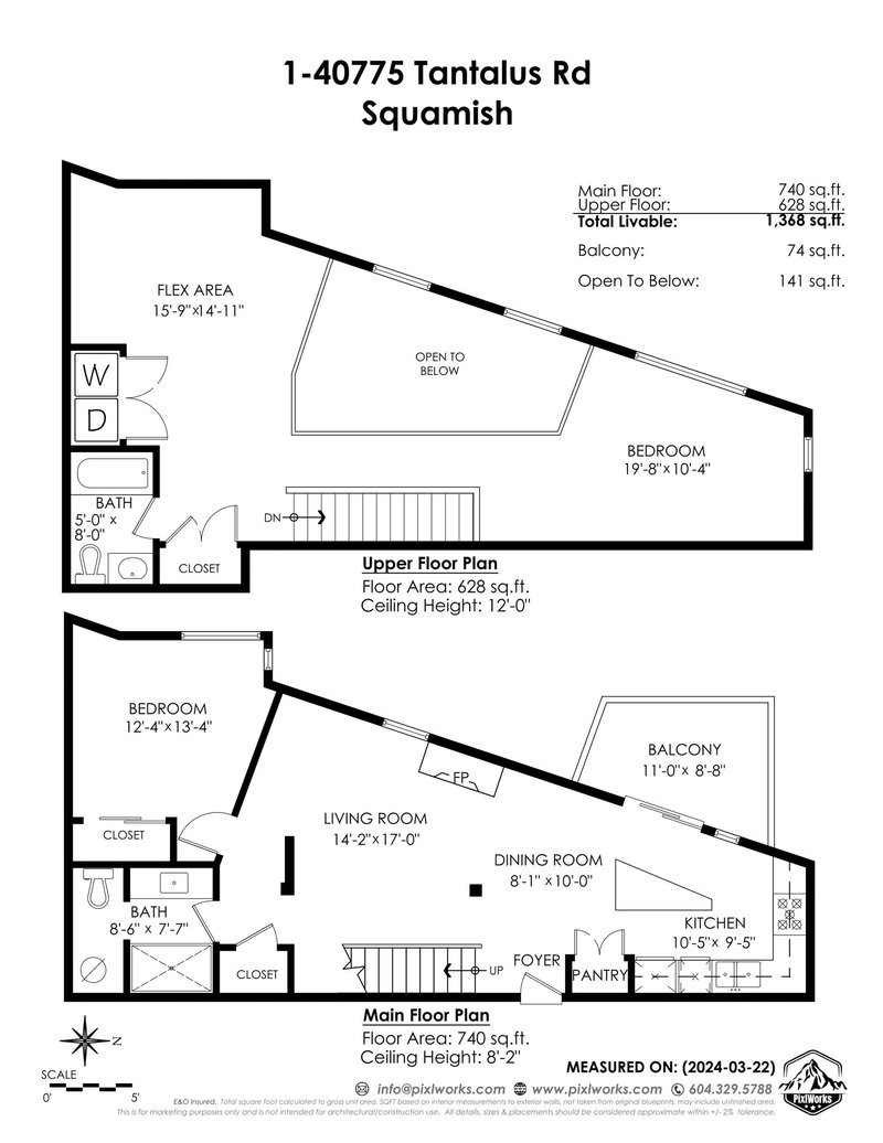
1 - 40775 Tantalus Road, Squamish, V8B 0N2
- - Beds
- Baths
4 months
On Market
Apartment/Condo
Property Type
$3,107 / Year
Est. Taxes
$671 / Month
Maint. Fees
Y
Locker
2006
Year Built
Comparable properties in the same area and price range as 1 - 40775 Tantalus Road, Squamish, V8B 0N2
11 min walk • 0.96 km away
2590 Portree Way, Garibaldi Highlands, BC V0N 1T0, Canada
Visit schools website20 min walk • 1.68 km away
33 min walk • 2.79 km away
54 min walk • 4.51 km away
57 min walk • 4.78 km away
40 min walk • 3.36 km away
54 min walk • 4.57 km away