



































Terminated
$•,•••,•••
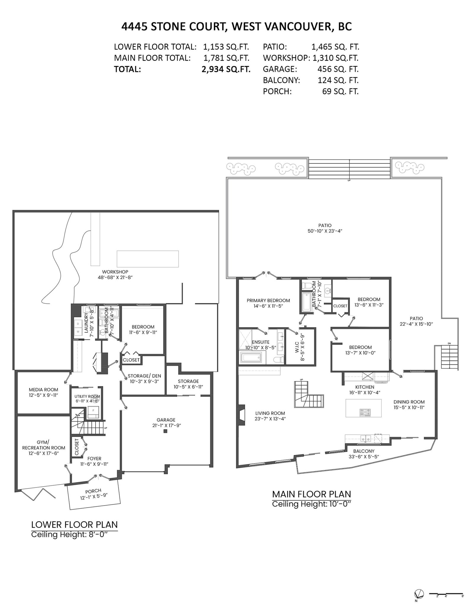
4445 Stone Court, West Vancouver, V7W 2V4
- - Beds
- Baths
2 months
On Market
House/Single Family
Property Type
$6,781 / Year
Est. Taxes
2 Storey
Style
-
Garage
None
Basement
6 min walk • 0.56 km away
33 min walk • 2.83 km away
12 min walk • 1.06 km away
143 min walk • 11.99 km away
Comparable properties in the same area and price range as 4445 Stone Court, West Vancouver, V7W 2V4