




















Expired
$28K on Jan 20
$•,•••,•••
$1,058,00022 - 6333 No. 1 Road, Richmond, V7C 1T4
- - Beds
- Baths





















Expired
$28K on Jan 20
4 months
On Market
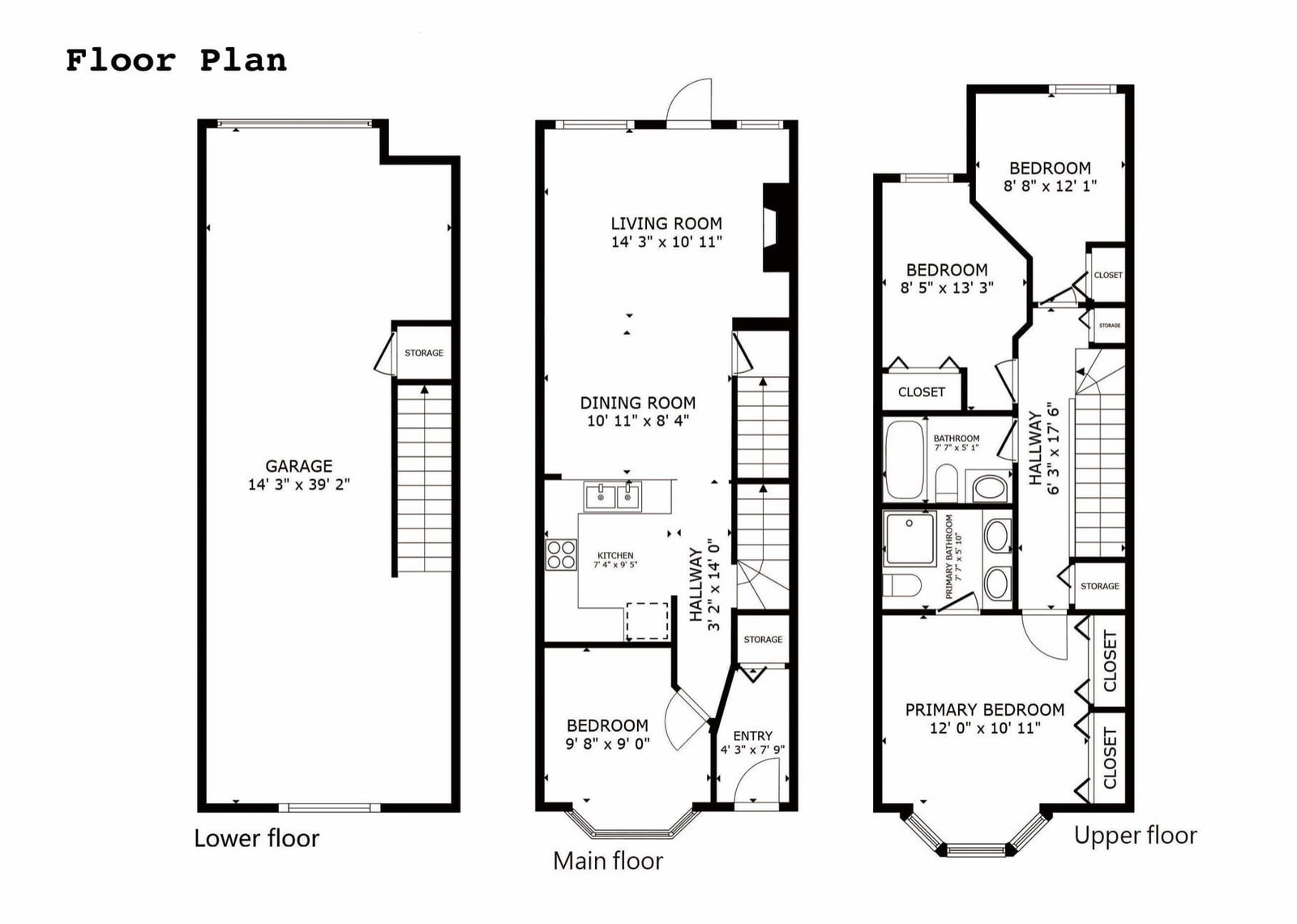
Townhouse
Property Type
$3,443 / Year
Est. Taxes
3 Storey,3 Storey
Style
-
Garage
None
Basement
27 min walk • 2.25 km away
6 min walk • 0.52 km away
11 min walk • 0.99 km away
105 min walk • 8.78 km away
Comparable properties in the same area and price range as 22 - 6333 No. 1 Road, Richmond, V7C 1T4