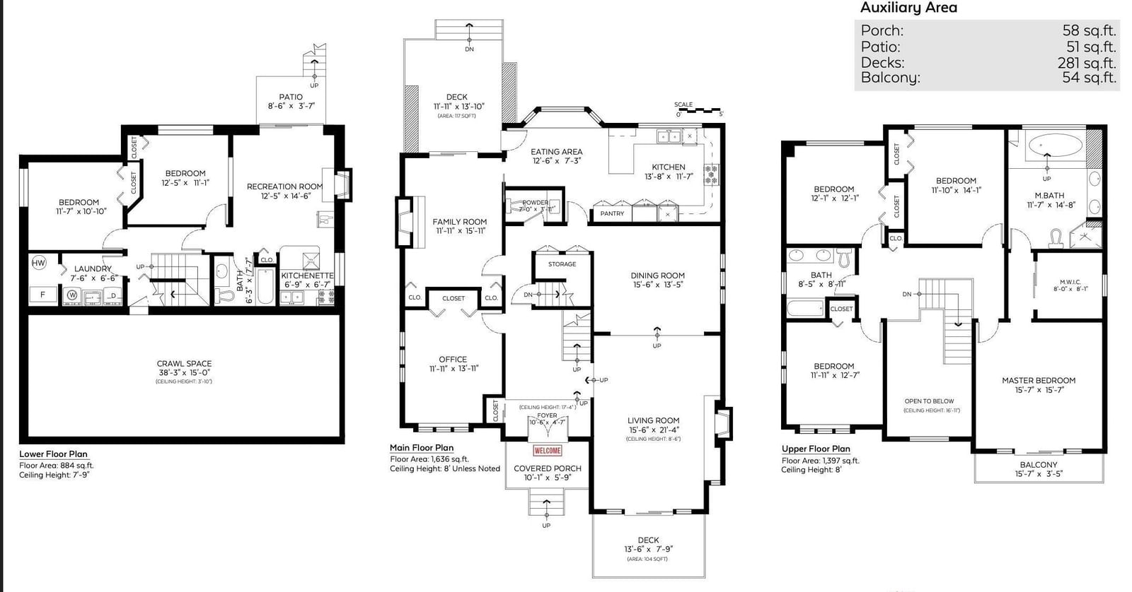
3979 33rd Avenue, Vancouver, V6N 2H7 — For sale @ $3,880,000