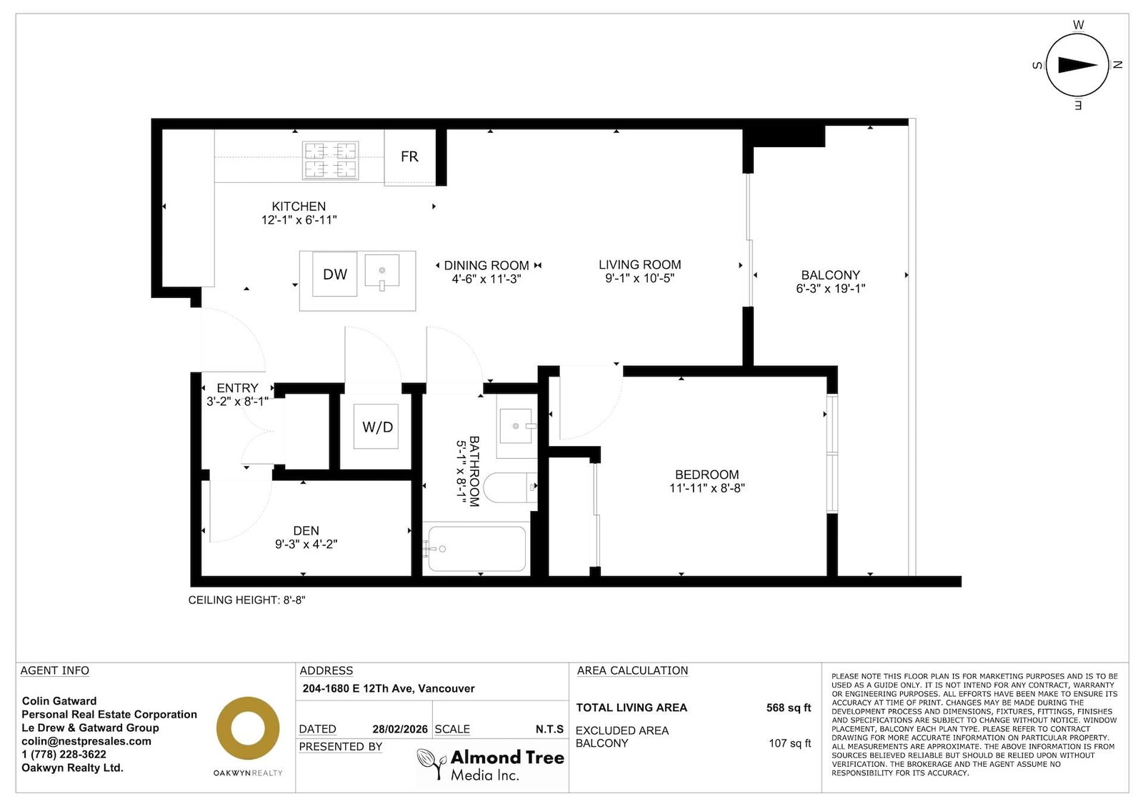
204 - 1680 12th Avenue, Vancouver, V5N 2A3 — For sale @ $699,800