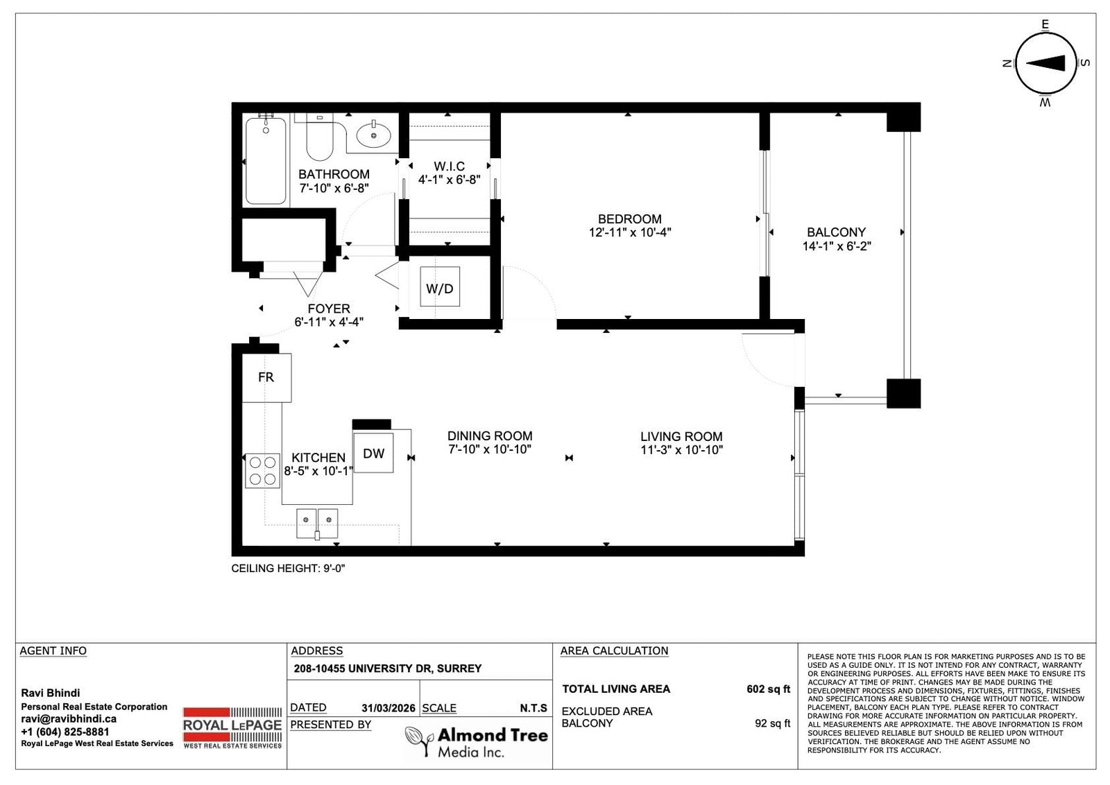
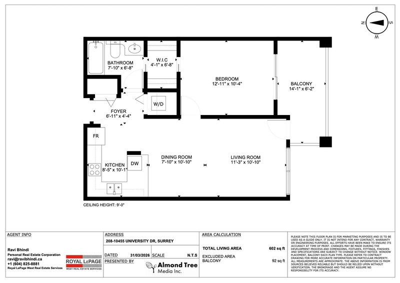
208 - 10455 University Drive, Surrey, V3T 0A5 — For sale @ $350,000