




























For sale
$1,180,000
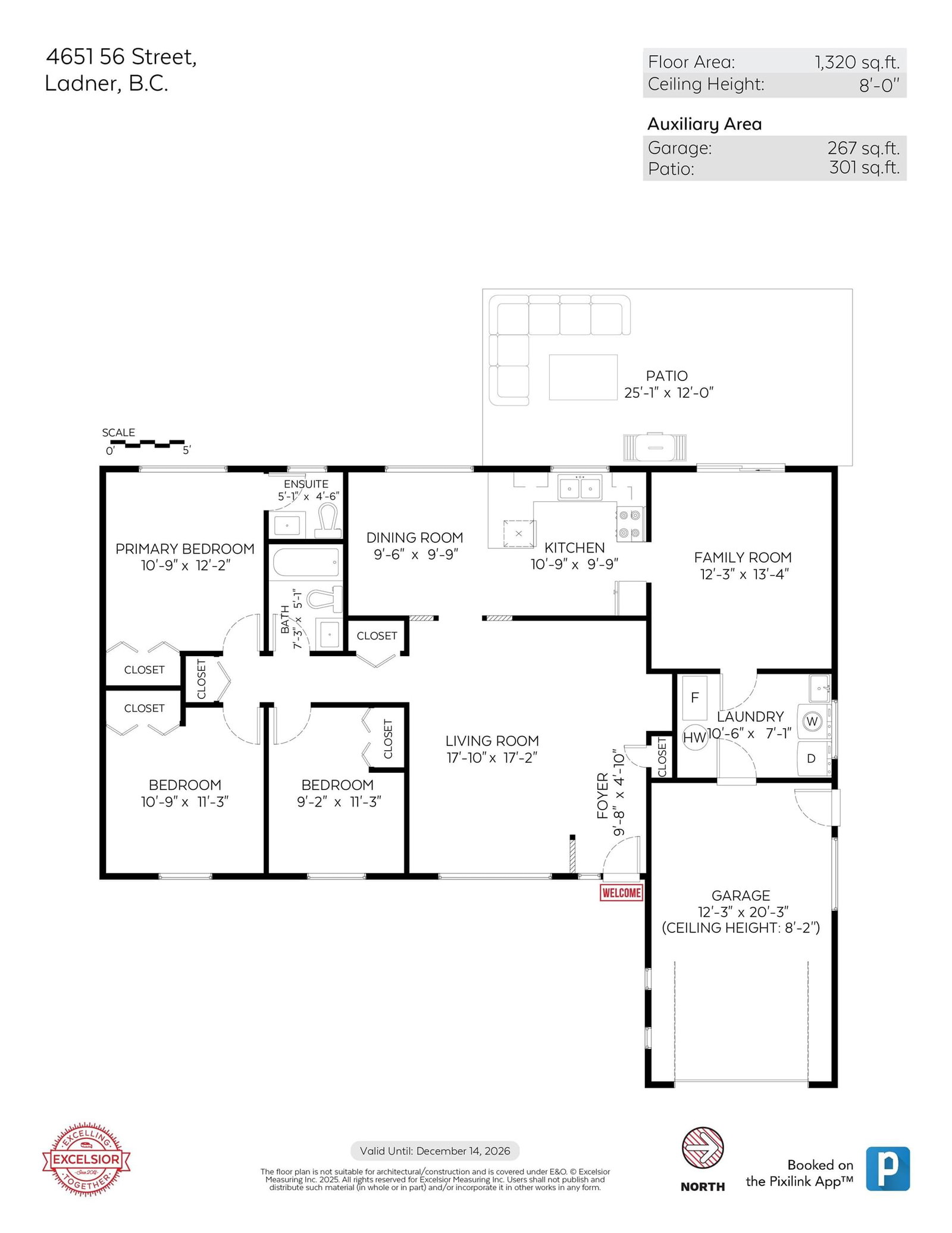
4651 56 Street, Ladner, V4K 3X4
- 3 Beds
- 2 Baths
10 days
On Market
House/Single Family
Property Type
$4,985 / Year
Est. Taxes
1 Storey
Style
-
Garage
None
Basement
Comparable properties in the same area and price range as 4651 56 Street, Ladner, V4K 3X4
15 min walk • 1.29 km away
95 min walk • 7.95 km away
15 min walk • 1.26 km away
192 min walk • 16.02 km away
14033 92 Ave, Surrey, BC V3V 1J5, Canada
Visit schools website233 min walk • 19.49 km away