Sold Aug 11, 2023




























$•,•••,•••
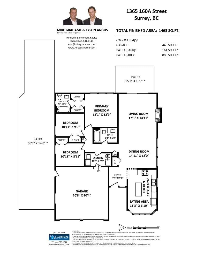
1365 160a Street, Surrey, V4A 7T7
- - Beds
- Baths
3 days
On Market
House/Single Family
Property Type
$4,461 / Year
Est. Taxes
1 Storey,Rancher/Bungalow
Style
-
Garage
Crawl
Basement
Comparable properties in the same area and price range as 1365 160a Street, Surrey, V4A 7T7
5 min walk • 0.42 km away
66 min walk • 5.51 km away
71 min walk • 5.96 km away
112 min walk • 9.35 km away
8 min walk • 0.72 km away
152 min walk • 12.67 km away
130 min walk • 10.88 km away