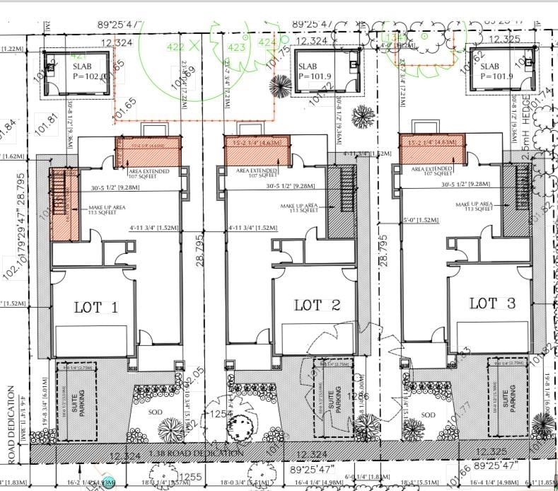
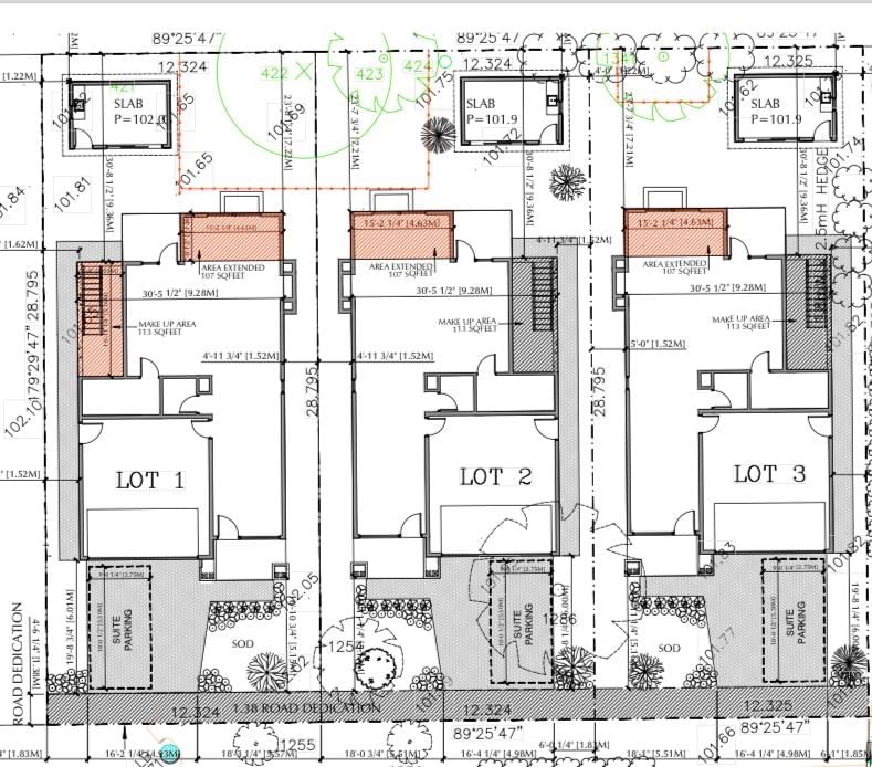
LT.3 - 11785 82b Avenue, Delta, V4C 2E8 — Terminated