










Terminated
$•,•••,•••
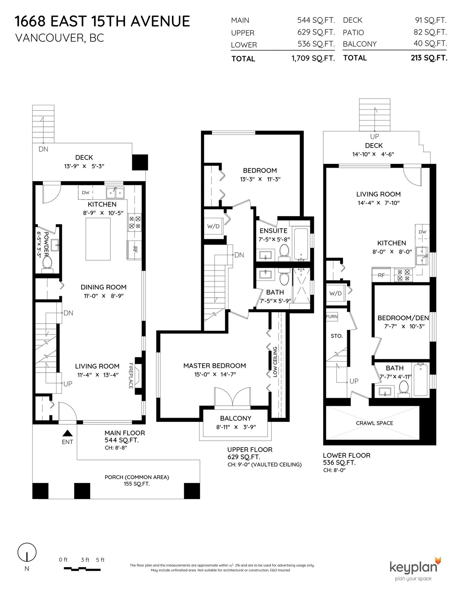
1672 15th Avenue, Vancouver, V5N 2G1
- - Beds
- Baths
4 months
On Market
1/2 Duplex
Property Type
$6,071 / Year
Est. Taxes
3 Storey
Style
-
Garage
Fully Finished
Basement
Comparable properties in the same area and price range as 1672 15th Avenue, Vancouver, V5N 2G1
25 min walk • 2.12 km away
54 min walk • 4.52 km away
9 min walk • 0.75 km away
15 min walk • 1.25 km away
5 min walk • 0.42 km away
32 min walk • 2.73 km away
52 min walk • 4.39 km away
53 min walk • 4.45 km away
12 min walk • 1.07 km away