Part 4, Plan 51 Part of Lot 19 Concession 2 Rd, Springwater, L0L 1X0
- Beds
Baths
Part 4, Plan 51 Part of Lot 19 Concession 2 Rd, Springwater, L0L 1X0 — Terminated
-
- Parking
- sqft
Home Overview
Description
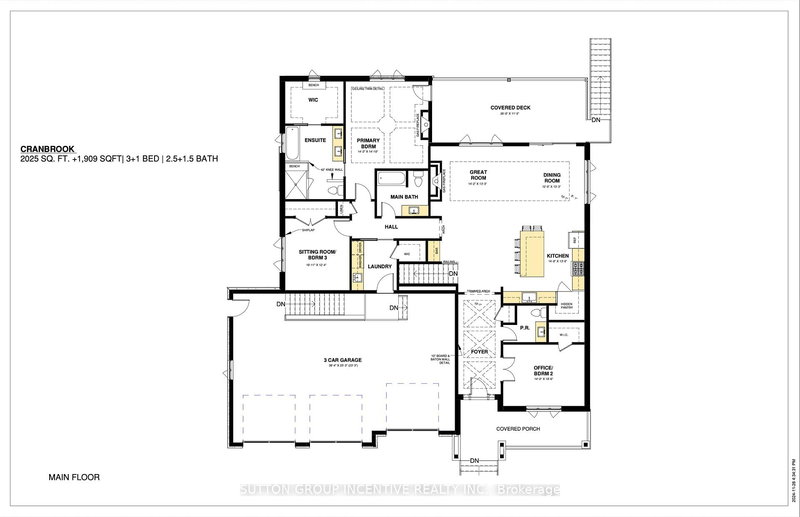
Considering a spring build? The planning process starts now...exceptional opportunity to build your custom estate home on one of four premium rural ravine lots in the highly desirable community of Midhurst. Opportunities of this calibre are rare, offering the perfect blend of privacy, space, and proximity to Barrie, schools, and everyday amenities. Lots feature ravine settings backing onto Environmental Protection (EP) lands, providing enhanced privacy and a natural backdrop.These listings are offered as design-build opportunities with a reputable local builder with over 30 years of experience. The builder has been granted written authorization by the landowner to market and advertise proposed homes for sale. Any agreement of purchase and sale will be conditional upon the builder successfully securing the Buyer's selected lot. Conceptual floor plans and renderings are provided for illustrative purposes and have been professionally priced using standard luxury builder finish selections. Renderings may depict optional or upgraded exterior features that are not included in the base price. Buyers may select from the builder's extensive portfolio of thoughtfully designed homes, customize an existing plan, or bring their own plans to be reviewed and priced.The builder offers a fully integrated design experience, including an in-house BCIN-qualified architectural designer and an in-house interior designer, ensuring a seamless process from concept to completion. Model homes are available for viewing, allowing buyers to experience the builder's construction quality, finishes, and craftsmanship firsthand. Lots may also be purchased separately, subject to availability. A rare chance to secure a custom home in one of Simcoe County's most coveted communities-where design flexibility, proven craftsmanship, and location come together. Taxes not yet assessed. Municipal address not yet assigned.
2 months
On Market
Detached
Property Type
$0 / Year
Est. Taxes
Bungalow-Raised
Style
Attached
Garage
Development Potential
Basement
Home Details
Lot Depth:
230 Feet
Lot Width:
98 Feet
Style:
Bungalow-Raised
Exterior Construction:
Other
Roof Material:
Asphalt Shingle
Patio/Deck:
-
Driveway:
6
Swimming Pool:
None
Instant Estimate
$1,588,595
Upper range
$1,811,335
Mid range
$1,588,595
Lower range
$1,365,854
Schools nearby
Listing Brokerage
MLS® Listing
S12718736
Brokerage
SUTTON GROUP INCENTIVE REALTY INC.
SUTTON GROUP INCENTIVE REALTY INC. - Disclaimer: The information contained in this listing has not been verified by SUTTON GROUP INCENTIVE REALTY INC. and should be verified by the buyer.
Data is deemed reliable but not guaranteed accurate by TRREB.