


View all 3 photos
For lease
$••
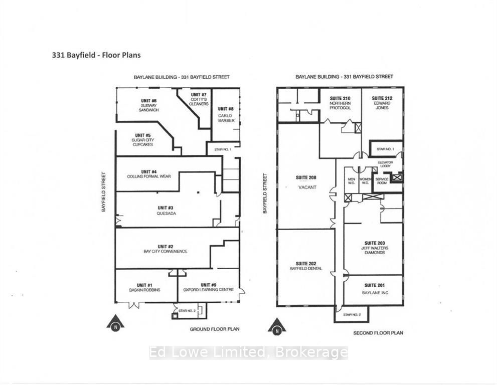
331 Bayfield St, Barrie, L4M 3C2
- - Baths
- - Parking
- sqft
-
On Market
Commercial/Retail
Property Type
$10 / Year
Est. Taxes
-
Style
Other Retail
Business Type
-
Franchise
Ed Lowe Limited, Brokerage - Disclaimer: The information contained in this listing has not been verified by Ed Lowe Limited, Brokerage and should be verified by the buyer.
Data is deemed reliable but not guaranteed accurate by TRREB.
6 min walk • 0.56 km away
86 min walk • 7.22 km away
102 min walk • 8.5 km away
11 min walk • 0.99 km away