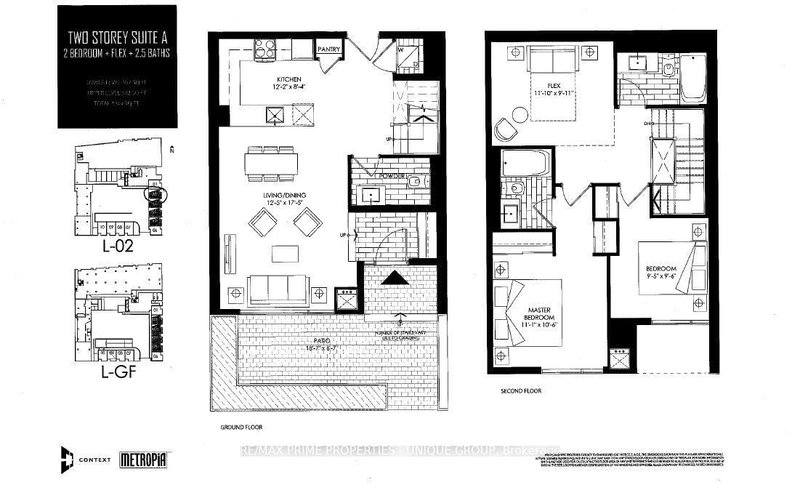
Th 109 - 106 Varna Dr, Toronto, M6H 0C8 — For lease @ $3,650