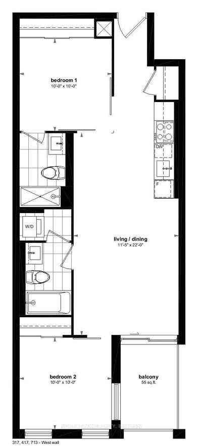
2407 - 10 Graphophone Grve, Toronto, M6H 2A6 — For lease @ $2,700